












Casă existentă cu proiect de extindere și autorizație de construcție emisă – zonă Barbu Văcărescu -Floreasca
Strada Intrarea Glucozei 21, sector 2, București.
Situată pe o stradă retrasă, închisă circulației publice și frecventată aproape exclusiv de riverani, această proprietate oferă un tip de liniște greu de găsit într-o zonă atât de bine conectată a Bucureștiului.
La doar câteva minute de bulevardul Barbu Văcărescu și de dinamica zonei Floreasca, vorbim despre un loc unde viața urbană se îmbină natural cu intimitatea unui cartier de case matur, deja consolidat și modernizat.
Terenul are o suprafață de 215 mp, cu o deschidere de aproximativ 10 metri liniari la stradă, iar curtea liberă, de aproximativ 140 mp, oferă suficient spațiu pentru o grădină verde, o terasă generoasă sau o zonă de relaxare pentru întreaga familie.
Accesul auto este facil, existând posibilitatea parcării unei mașini în curte, precum și a altor două în fața proprietății, pe o stradă largă, cu trafic aproape inexistent.
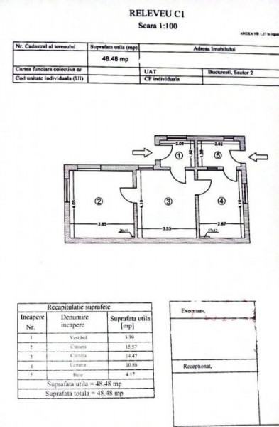
În prezent, pe teren se află o casă individuală construită în anii ’60, pe un singur nivel, cu o suprafață utilă de aproximativ 57 mp și o amprentă la sol de 76 mp. Este o construcție modestă ca finisaje, însă cu un atu structural important: deasupra parterului există un pod pe întreaga suprafață a casei, susținut de o placă de beton turnată încă din momentul construcției, concepută pentru a permite supraetajarea.
Această viziune nu mai este doar un potențial teoretic.
Pentru proprietate există deja un proiect profesional de extindere și consolidare, iar autorizația de construcție este emisă și valabilă.
Viitorul proprietar preia astfel nu doar un teren bine poziționat, ci un proiect clar, pregătit pentru implementare imediată, economisind timp, costuri și incertitudini birocratice.
Planurile arhitecturale propun transformarea casei existente într-o locuință modernă, eficient compartimentată, cu spații luminoase și funcționale, perfect adaptate cerințelor actuale de locuire urbană.
Proprietatea oferă flexibilitate reală: fie păstrezi și extinzi structura existentă conform proiectului autorizat, fie alegi să reconstruiești complet, având deja cadrul legal și urbanistic clar definit.
Poziționarea completează perfect această oportunitate. În imediata apropiere se află complexul Pescariu Sports & Spa, Parcul Verdi, Parcul Circului, campusul Studențesc Tei, precum și centre comerciale importante precum Lidl, Kaufland și Farmacia Tei.
Toate acestea sunt accesibile în câteva minute, fie pe jos, fie cu mașina, într-o zonă recunoscută pentru calitatea vieții și pentru evoluția constantă a valorii imobiliare.
Aceasta nu este doar o casă veche, ci o proprietate cu o direcție clară și un avantaj major: posibilitatea de a construi imediat, într-un cartier unde astfel de oportunități devin din ce în ce mai rare.
Este locul potrivit pentru cei care își doresc un cămin personalizat sau o investiție solidă, într-una dintre cele mai căutate zone din nordul Capitalei.
Te invităm la vizionare pentru a descoperi toate detaliile la fața locului și pentru a analiza proiectul într-un context real, nu doar pe hârtie.
Broker imobiliar exclusiv si dedicat - Florin Toma / florin.toma@catoma.ro / 0735 551 422